Dagsmeja

Allt om detta hus
  • Bygghöjd 4,8 m
  • Byggarea 119 m2
  • Taklutning 34°
  • Antal rum 6 rum och kök

Arkitekt

Frida Andersson

Se alla planlösningar

Ett stiligt gavelställt suterränghus för hela livet

Dagsmeja är ett hus med resurser. Ett gavelställt suterränghus – eller sluttningshus – i stilren design som både bjuder på generösa sällskapsytor, gott om förvaring och fem sovrum fördelat på två våningar. Det sistnämnda skapar också stora möjligheter att låta rummens funktion ändras med tiden.

I Dagsmeja gör du entré på en sluttningsvåning som rymmer allt det praktiska – som tvättstuga, badrum och gott om förvaring. Här finns också tre sovrum och ett trevligt allrum som har ett generöst ljusinsläpp, vilket garanterar noll källarkänsla. Den raka trappan ger i sin tur en fin koppling till övervåningen och allt det goda som väntar där uppe

När vi kommer upp för trappan är det lätt att tappa hakan. Här bjuder Dagsmeja på fantastiska sociala ytor, en öppen planlösning med ljus från tre väderstreck, stor balkong och ett riktigt smakfullt studiokök. Här uppe finns också ett lyxigt master bedroom som både har egen walk-in-closet och egen utgång till trädgården, plus ett mindre sovrum eller arbetsrum samt toalett med dusch.

Produktbilderna innehåller tillval, se dem som inspirationsmaterial.

Planlösningar

Planlösning 1 av 2

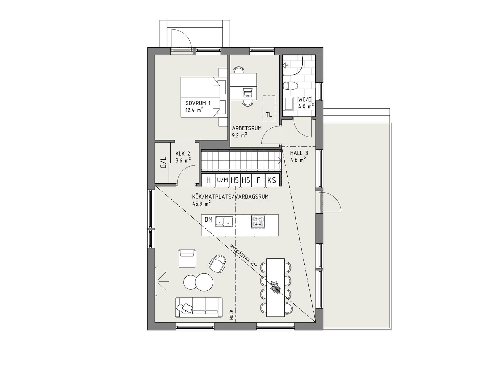
Modern stil - Entrévåning

Redan i entrén möter vi husets praktiska höjdpunkter som kapprum, badrum och tvättstuga. Här finns också ett trevligt allrum omringat av tre sovrum.

Planlösning 2 av 2

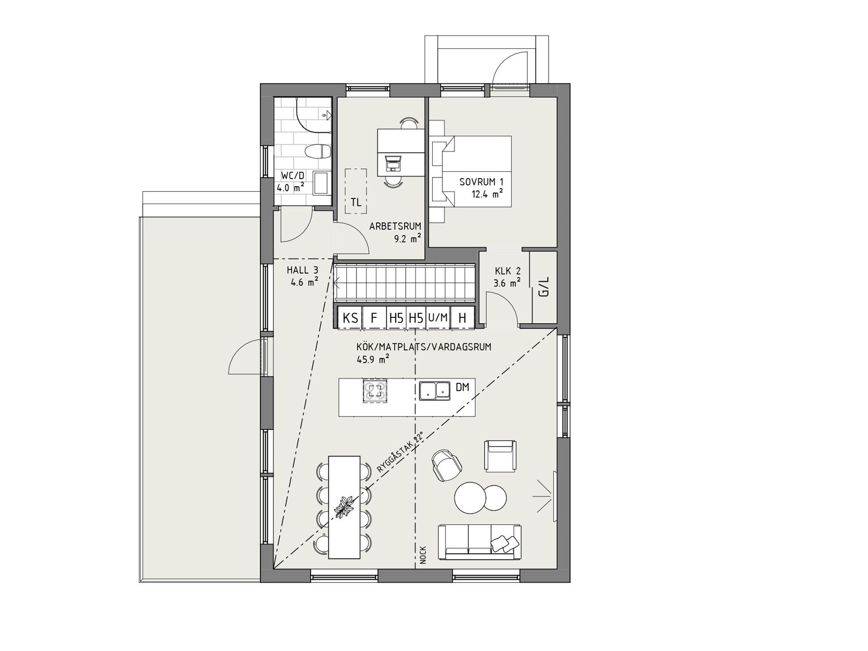
Modern stil - Övervåning

På övervåningen väntar ljusa, öppna umgängesytor, men också ett fint master bedroom och ett mindre sovrum eller hemmakontor.

Känns det bara nästan rätt?

Då kan vi hjälpa dig att anpassa planlösningen för att den ska passa er perfekt.

Fler planlösningar

1 av 2

Modern stil - Entrévåning

2 av 2

Modern stil - Övervåning

Andreas Ejresund Säljare, Myresjöhus

Nyfiken och vill veta mer?

Vad kostar det?

Hör av dig till oss så återkommer vi med en detaljerad kalkyl baserad på vad och vart du vill bygga.

Bli inspirerad!

Utforska alla våra husmodeller bekvämt hemma i soffan. I brevlådan inom några dagar!

Kontakta oss

Hur vill du att vi kontaktar dig?

Beställ katalog

Maxad inspiration till soffmyset

Dagsmeja x Modern

I modern stil får Dagsmeja en stilren gestaltning som skapar ett distinkt uttryck. Här ser vi en tvåtonad färgsättning med mörk sockel och en skogsgrön fasad, perfekt kompletterat av ett svart tak. Även de stora rena fönsterytorna förstärker den nutida känslan. Inne möter ute i en sömlös helhet.

De stora uppglasade ytorna förstärker den moderna känslan
Frida Andersson, Arkitekt

Dina valmöjligheter

Små detaljer som piffar upp och stora tillval som gör dagarna bättre för hela familjen. Något som gör hemmet lite mer personligt. Lite mer perfekt för just dig. 

Bläddra i katalogen

Ett kontrakt, en kontakt

Ert viktigaste val

En fråga som är lika viktig som vilket hus du ska bygga är hur det ska byggas. På Myresjöhus erbjuder vi totalentreprenad till fast pris där din egen projektledare ingår. Nyckelfärdigt hus i ordets rätta bemärkelse!

Mer om totalentreprenad

Hitta tomt att bygga på

Sök på t.ex. adress, område, stad, kommun, län, projekt-/objektnamn

Liknande hus

Bli OBOS-medlem

Vi på Myresjöhus är en del av OBOS, en av Nordens största bostadsutvecklare. Som OBOS-medlem får du förtur till våra bostäder, tomter och inflyttningsklara hus. Inte nog med förtur, så får du även fina förmåner för vardagsliv och vardagslyx!

Läs mer

Frågor och svar

Hej!

Berätta för oss i vilken kommun du vill bygga. Vi kommer anpassa webbplatsen till din valda kommun för att förenkla för dig.