Smart 150

Allt om detta hus
  • Bygghöjd 3,1 m
  • Byggarea 169 m2
  • Taklutning 27°
  • Antal rum 6-7 rum och kök

Arkitekt

Frida Andersson

Se planlösning

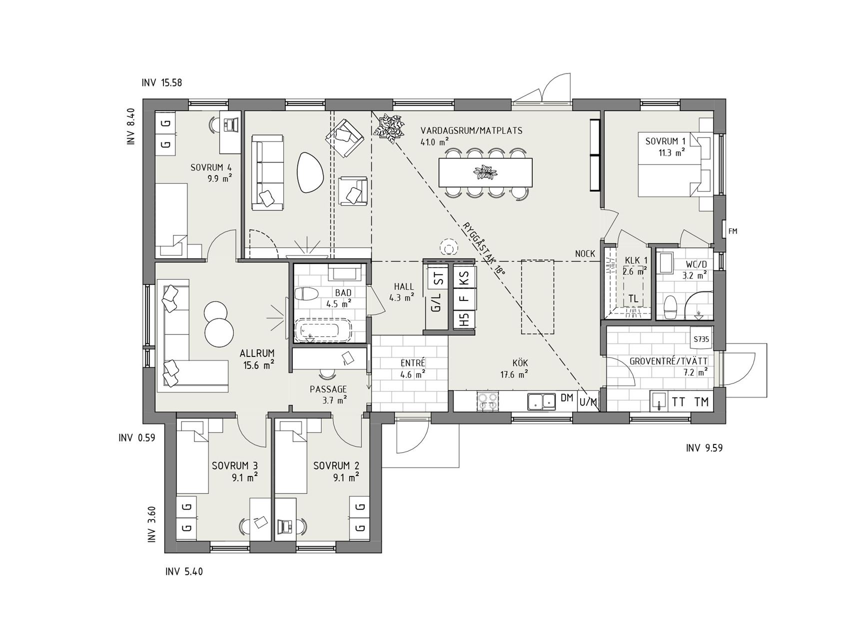
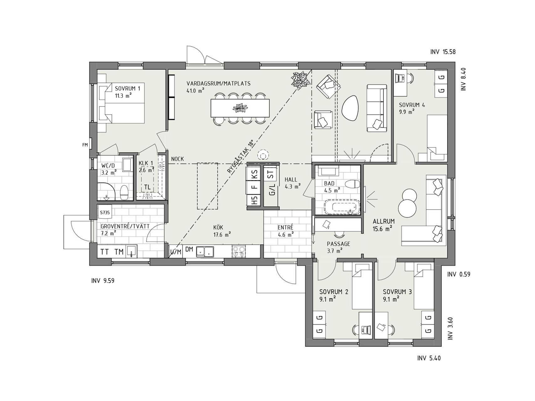
Rymligt 1-planshus med många smarta detaljer

Smart 150 är ett enplanshus för den stora familjen – eller för dig som vill ha riktigt gott om plats. Ljust och trevligt med fina sällskapsytor i centrum, och fyra sovrum. Tre av dessa på ena sidan av huset, och ett master bedroom med guldkant på den andra.

I entrén välkomnas vi av en ljuvlig siktlinje rakt igenom huset. Rakt framför oss väntar en härlig öppen yta för vardagsrum och matplats, med utgång till trädgården. Vi kan också smita direkt in i köket med matkassarna, eller vidare ut i tvättstugan med groventré. Köket är välplanerat med ett smart placerat fönster som låter dig diska med utsikt mot entrésidan. Här missar du inte när gästerna anländer.

Går vi istället åt andra hållet kommer vi in i vad som kanske blir barnens egen avdelning med tre sovrum som standard – du kan även utnyttja en del av vardagsrummet för att få ett femte sovrum. Här finns också ett trevligt allrum och en smart multifunktionsyta som kan fungera som arbetsplats, gaminghörna – eller varför inte ditt eget konstgalleri? Husets fina badrum ligger också här runt hörnet. Master bedroom hittar vi däremot på motsatta sidan av huset. Ett ljust och luftigt sådant, med extra guldkant i form av egen toalett med dusch – och egen walk-in-closet. Smart, inte sant?

Produktbilderna innehåller tillval, se dem som inspirationsmaterial.

Planlösning

Industriell stil

Här bjuds vi på en fin siktlinje rakt igenom huset med ljusinsläpp från vackert spröjsade fönster. Rakt fram väntar en härlig öppen planlösning för kök, matplats och vardagsrum. Husets privata ytor huserar på respektive sida av den sociala härligheten. Här kan du även göra olika tillval.

Visningar

Smart 150

Kundhus

torsdag 2 apr

18:00-19:00

Granhallsvägen 7, 45195 Uddevalla

Läs mer

Smart 150

Kundhus

Boka din egen tid

Granhallsvägen 7, 45195 Uddevalla

Boka tid

Nyfiken och vill veta mer?

Vad kostar det?

Hör av dig till oss så återkommer vi med en detaljerad kalkyl baserad på vad och vart du vill bygga.

Bli inspirerad!

Utforska alla våra husmodeller bekvämt hemma i soffan. I brevlådan inom några dagar!

Kontakta oss

Hur vill du att vi kontaktar dig?

Beställ katalog

Maxad inspiration till soffmyset

Trivsam industriell karaktär

Den industriella stilen handlar om kontraster, och Smart 150 i industriell stil infriar förväntningarna i varje detalj. Mjukt grå panel möter de karaktäristiska svarta detaljerna. Inklusive industrispröjsade fönster, såklart. Lika vackert som välkomnande.

Alla våra Smart-hus erbjuds i två olika utföranden, var och en med sin egen fönsterkonfiguration som tillsammans med färgsättning och val av detaljer ger stora möjligheter att skapa olika uttryck. Föredrar du lite mer lantlig charm, eller kanske ett modernt och stilrent uttryck? Kika på Smart 150 i lantlig stil eller modern stil.

Här får du ett master bedroom med hotellkänsla: egen walk-in-closet, och egen toalett med dusch.
Frida Andesson, Arkitekt
Man tränar utomhus vad vatten

Dina valmöjligheter

Små detaljer som piffar upp och stora tillval som gör dagarna bättre för hela familjen. Något som gör hemmet lite mer personligt. Lite mer perfekt för just dig. 

Bläddra i katalogen

Ett kontrakt, en kontakt

Ert viktigaste val

En fråga som är lika viktig som vilket hus du ska bygga är hur det ska byggas. På Myresjöhus erbjuder vi totalentreprenad till fast pris där din egen projektledare ingår. Nyckelfärdigt hus i ordets rätta bemärkelse!

Mer om totalentreprenad

Hitta tomt att bygga på

Sök på t.ex. adress, område, stad, kommun, län, projekt-/objektnamn

Liknande hus

Bli OBOS-medlem

Vi på Myresjöhus är en del av OBOS, en av Nordens största bostadsutvecklare. Som OBOS-medlem får du förtur till våra bostäder, tomter och inflyttningsklara hus. Inte nog med förtur, så får du även fina förmåner för vardagsliv och vardagslyx!

Läs mer

Frågor och svar

Hej!

Berätta för oss i vilken kommun du vill bygga. Vi kommer anpassa webbplatsen till din valda kommun för att förenkla för dig.