Sandsten

Allt om detta hus
  • Bygghöjd 3,5 m
  • Byggarea 123 m2
  • Antal rum 3 sovrum

Arkitekt

Anna Lantz Niklasson

Se alla planlösningar

Ett 1,5-planshus med nutida och avskalad stil

Sandsten är ett inbjudande 1,5-planshus med härliga umgängesytor på entrévåningen och tre trivsamma sovrum en trappa upp. Alltsammans kännetecknat av ljus och rymd, inte minst tack vare vardagsrummets generösa takhöjd.

Sandsten välkomnar oss med en rymlig entré med en fin siktlinje rakt in i hemmets sociala härlighet. En väldigt ljus och inbjudande öppen planlösning, där både kök, matplats och vardagsrum ändå har sin egen identitet. Vardagsrummets takhöjd blir extra generös då det är öppet upp till nock, och stora fönster låter ljuset flöda. Vid sidan av vardagsrummet finns också ett extra rum, som passar lika bra som lounge, bibliotek – eller kanske ditt hemmakontor.

En trappa upp möts vi av ett ljust och trevligt allrum, samt husets tre sovrum, toalett med dusch och en praktisk klädkammare. På tal om praktiska detaljer, så finns det förstås även ett badrum på entrévåningen – liksom en fin tvättstuga med groventré.

Produktbilderna innehåller tillval, se dem som inspirationsmaterial.

Planlösningar

Planlösning 1 av 2

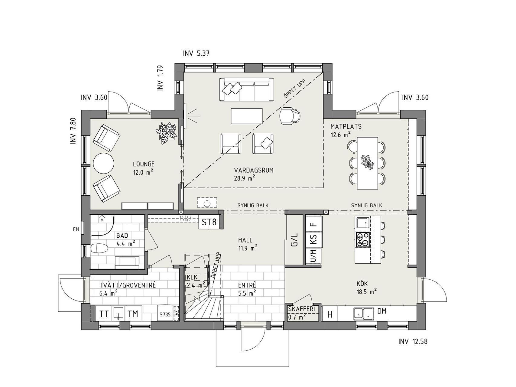
Entrévåning - Lantlig stil

Från entrén har du fri sikt in till vardagsrummet, med öppet upp till nock och ljus som strömmar in från stora, lantligt spröjsade fönster. Härifrån finns även ett naturligt sampel med köket och matplatsen.

Planlösning 2 av 2

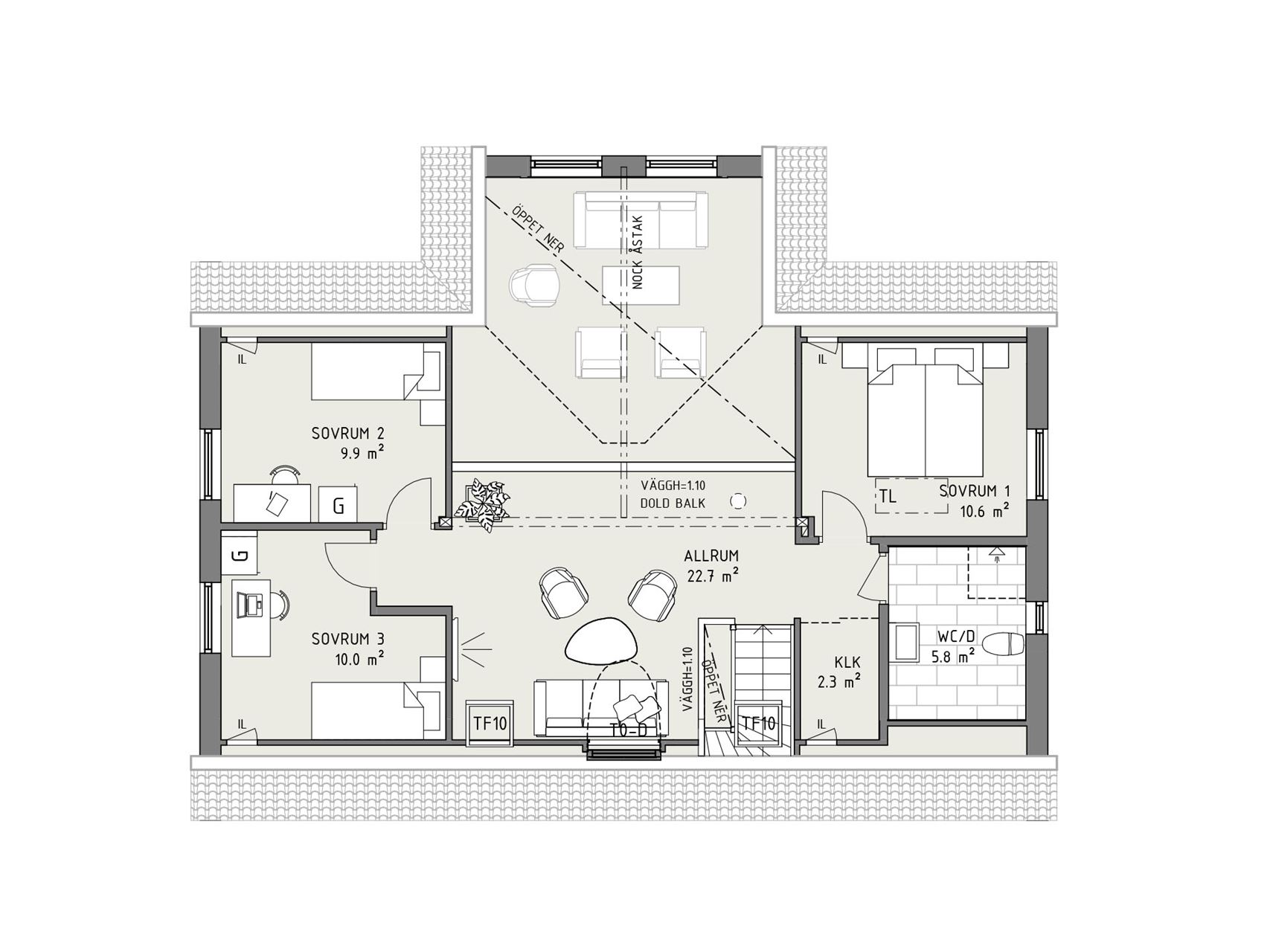
Övervåning - Lantlig stil

Vardagsrummets fönster sprider ljus även på övervåningen. Där finns husets tre sovrum, ett badrum och ett allrum som knyter ihop rummen.

Känns det bara nästan rätt?

Då kan vi hjälpa dig att anpassa planlösningen för att den ska passa er perfekt.

Fler planlösningar

1 av 2

Entrévåning - Lantlig stil

2 av 2

Övervåning - Lantlig stil

Janne Bergendahl Säljare, Myresjöhus

Nyfiken och vill veta mer?

Vad kostar det?

Hör av dig till oss så återkommer vi med en detaljerad kalkyl baserad på vad och vart du vill bygga.

Bli inspirerad!

Utforska alla våra husmodeller bekvämt hemma i soffan. I brevlådan inom några dagar!

Kontakta oss

Hur vill du att vi kontaktar dig?

Beställ katalog

Maxad inspiration till soffmyset

Sandsten x Lantlig

I lantlig stil blir Sandsten ett vackert hus med klassiska stildrag som lämpar sig perfekt för en naturnära miljö. Huset har vitputsad fasad, havregula takpannor och symmetrisk fönstersättning som får det att smälta in i en lantlig kontext på ett självklart sätt. Ett stilval för dig som önskar ett modernt boende med rötter i den skånska, lantliga exteriöra traditionen

Ett vackert hus med klassiska stildrag som lämpar sig perfekt för en lantlig och naturnära miljö
Anna Lantz Niklasson, Arkitekt

Dina valmöjligheter

Små detaljer som piffar upp och stora tillval som gör dagarna bättre för hela familjen. Något som gör hemmet lite mer personligt. Lite mer perfekt för just dig. 

Bläddra i katalogen

Ett kontrakt, en kontakt

Ert viktigaste val

En fråga som är lika viktig som vilket hus du ska bygga är hur det ska byggas. På Myresjöhus erbjuder vi totalentreprenad till fast pris där din egen projektledare ingår. Nyckelfärdigt hus i ordets rätta bemärkelse!

Mer om totalentreprenad

Uppskattad energiförbrukning

Här kan du få en uppfattning om hur energisnålt ett nytt Myresjöhus faktiskt är. Fyll i din kommun för att se uppskattad energiförbrukning i ditt drömhus just där du vill bygga.

När du väljer en plats du vill bygga på så anpassar vi webbplatsen för att ge dig mer relevant information. Du kan byta plats när som helst.

Energianvändning

(värme & varmvatten)

11 200

kWh/år
Malmö (grundval)

Total energi­användning*

(inklusive hushållsel)

6 000

kWh/år
Energiklass

C

Bo billigare i nybyggt hus

Idag tror många att de inte har råd att bygga ett nytt hus – och allt för många vet heller inte hur mycket billigare det faktiskt är att bo i ett nybyggt hus.

80% lägre energiförbrukning i ett nybyggt Myresjöhus

Att nybyggda hus är energisnåla hus är ingen nyhet, speciellt inte jämfört med äldre villor. Men visste du hur mycket det faktiskt kan skilja?

Spara ännu mer med solceller

Genom att utrusta ditt Myresjöhus med rätt antal solceller kan du nästan bli helt självförsörjande på el. Ett tillval som lönar sig i längden.

Hitta tomt att bygga på

Sök på t.ex. adress, område, stad, kommun, län, projekt-/objektnamn

Liknande hus

Bli OBOS-medlem

Vi på Myresjöhus är en del av OBOS, en av Nordens största bostadsutvecklare. Som OBOS-medlem får du förtur till våra bostäder, tomter och inflyttningsklara hus. Inte nog med förtur, så får du även fina förmåner för vardagsliv och vardagslyx!

Läs mer

Frågor och svar

Hej!

Berätta för oss i vilken kommun du vill bygga. Vi kommer anpassa webbplatsen till din valda kommun för att förenkla för dig.