Smart 100

Allt om detta hus
  • Bygghöjd 3,1 m
  • Byggarea 115 m2
  • Taklutning 27°
  • Antal rum 4 rum och kök

Arkitekt

Frida Andersson

Se planlösning

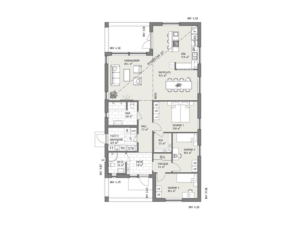
Smart och behändigt 1-planshus med rum för det mesta

Låt dig inte luras av siffran: Smart 100 är ett smart planerat enplanshus med mycket fin funktion per kvadratmeter. Tre sovrum, där master bedroom har egen walk-in-closet och egen toalett med dusch, en inbjudande öppen planlösning för kök och vardagsrum – med mera.

Redan i entrén möts vi av en härlig siktlinje rakt igenom huset. Här kan vi antingen fortsätta in i den ljusa öppna ytan för vardagsrum och matplats, och kanske vidare ut i trädgården? Eller så kan vi smita direkt in i köket, och därifrån vidare ut i tvättstugan med groventré. I köket finns ett perfekt placerat fönster så att du kan diska med utsikt och samtidigt spana ut mot entrésidan och se när gästerna anländer.

På den högra sidan huserar två trevliga sovrum, på var sin sida om badrummet. I passagen mellan dem finns också rum för förvaring. Master bedroom hittar vi på motsatta sidan av huset. Ett härligt ljust sådant, med fönster åt två håll, och extra pluspoäng i form av egen toalett med dusch – och egen walk-in-closet. Vi sa väl att det här är ett hus som utnyttjar sina kvadratmetrar riktigt smart?

Produktbilderna innehåller tillval, se dem som inspirationsmaterial.

Planlösning

Modern stil

Redan i entrén möts vi av ljuset från en generös fönstersättning, utan spröjs, såklart. Husets mittparti rymmer en trevlig öppen planlösning för kök och vardagsrum, kantat av tre trivsamma sovrum. Fint redan från start, men du kan även komplettera ditt nya hem med olika tillval.

Roger Albinsson Säljare, Myresjöhus

Nyfiken och vill veta mer?

Vad kostar det?

Hör av dig till oss så återkommer vi med en detaljerad kalkyl baserad på vad och vart du vill bygga.

Bli inspirerad!

Utforska alla våra husmodeller bekvämt hemma i soffan. I brevlådan inom några dagar!

Kontakta oss

Hur vill du att vi kontaktar dig?

Beställ katalog

Maxad inspiration till soffmyset

Monokromt modernt och stilrent

I modern stil får Smart 100 en monokrom röd färgsättning som förhöjer de rena linjernas elegans. Här ser vi en härligt enkel och avskalad arkitektur med nätta takfötter, ospröjsade fönster och stående funkispanel. På entrésidan dras blicken till husets signum: den stilrena pergolan som ramar in och definierar entrén.

Alla våra Smart-hus erbjuds i två olika utföranden, var och en med sin egen fönsterkonfiguration som tillsammans med färgsättning och val av detaljer ger stora möjligheter att skapa olika uttryck. Föredrar du lite mer lantlig elegans, eller kanske lite industriell karaktär? Ta då en titt på Smart 100 i lantlig stil eller industriell stil.

Att ha så nära in till köket är smidigt när du kommer hem med matkassarna
Frida Andersson, Arkitekt

Dina valmöjligheter

Små detaljer som piffar upp och stora tillval som gör dagarna bättre för hela familjen. Något som gör hemmet lite mer personligt. Lite mer perfekt för just dig. 

Bläddra i katalogen

Ett kontrakt, en kontakt

Ert viktigaste val

En fråga som är lika viktig som vilket hus du ska bygga är hur det ska byggas. På Myresjöhus erbjuder vi totalentreprenad till fast pris där din egen projektledare ingår. Nyckelfärdigt hus i ordets rätta bemärkelse!

Mer om totalentreprenad

Hitta tomt att bygga på

Sök på t.ex. adress, område, stad, kommun, län, projekt-/objektnamn

Liknande hus

Bli OBOS-medlem

Vi på Myresjöhus är en del av OBOS, en av Nordens största bostadsutvecklare. Som OBOS-medlem får du förtur till våra bostäder, tomter och inflyttningsklara hus. Inte nog med förtur, så får du även fina förmåner för vardagsliv och vardagslyx!

Läs mer

Frågor och svar

Hej!

Berätta för oss i vilken kommun du vill bygga. Vi kommer anpassa webbplatsen till din valda kommun för att förenkla för dig.