Smart 140

Allt om detta hus
  • Bygghöjd 3,1 m
  • Byggarea 158 m2
  • Taklutning 27°
  • Antal rum 6 rum och kök

Arkitekt

Frida Andersson

Se planlösning

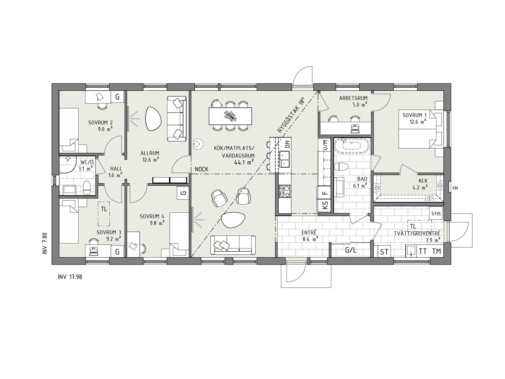
Härligt smart 1-planshus med rum för fler

Den större versionen av Smart 117 har lika smarta lösningar: bra förvaring, föräldrasovrum med walk-in-closet och egen ingång till badrummet – liksom ett utmärkt hemmakontor. Men också hela fyra sovrum och ett extra allrum.

Här bjuds vi in i en rymlig entré med en strålande siktlinje genom huset. I mitten av huset får det sociala livet ta plats, i en öppen planlösning där rumskänslan ändå är närvarande i kökets placering. På ena sidan av umgängesytan hittar vi en generös barnavdelning med allrum, tre sovrum och toalett med dusch. På andra sidan når vi föräldrasovrummet, via genomgångsrummet som passar utmärkt som hemmakontor – eller kanske som första rum för familjens minsting? Fler smarta fördelar är det fina klädvårdsutrymmet med groventré och badrummets extra ingång som ger hotellkänsla i föräldrasovrummet.

Produktbilderna innehåller tillval, se dem som inspirationsmaterial.

Planlösning

Lantlig stil

I sin lantliga stil erbjuder Smart 140 en vertikal fönstersättning med spröjsade fönster som ger ett vackert ljusinsläpp. Njut av luftiga sociala ytor, gott om rum för privatlivet i hela fyra sovrum och många smarta detaljer som gör huslivet lite härligare.

Visningar

Smart 140

Kundhus

lördag 7 mar

11:00-13:00

Körvelvägen 9, Kolmården

Läs mer

Smart 140

Visningshus

Boka din egen tid

Golfbanevägen 15, Saxnäs, Färjestaden

Boka tid
Håkan Thunberg Säljare, Myresjöhus

Nyfiken och vill veta mer?

Vad kostar det?

Hör av dig till oss så återkommer vi med en detaljerad kalkyl baserad på vad och vart du vill bygga.

Bli inspirerad!

Utforska alla våra husmodeller bekvämt hemma i soffan. I brevlådan inom några dagar!

Kontakta oss

Hur vill du att vi kontaktar dig?

Beställ katalog

Maxad inspiration till soffmyset

Traditionellt, varmt och välkomnande

Här ser vi Smart 140 i sin lantliga stil. En ständigt aktuell husdröm med traditionell färgsättning och en mer vertikal fönstersättning med vackert spröjsade fönster som låter ljuset flöda in. Smart 140 erbjuds i två olika utföranden, var och en med sin egen fönsterkonfiguration som tillsammans med färgsättningen ger stora möjligheter att skapa olika uttryck. Huset i detta utförande klär också i en industriell kostym, medan den moderna versionen med stora fönster utan spröjs i sin tur skapar stora stilrena möjligheter. Vad väljer du?

Siktlinjen rakt genom huset ut till baksidan är något alldeles extra.
Frida Andersson , Arkitekt

Dina valmöjligheter

Små detaljer som piffar upp och stora tillval som gör dagarna bättre för hela familjen. Något som gör hemmet lite mer personligt. Lite mer perfekt för just dig. 

Bläddra i katalogen

Ett kontrakt, en kontakt

Ert viktigaste val

En fråga som är lika viktig som vilket hus du ska bygga är hur det ska byggas. På Myresjöhus erbjuder vi totalentreprenad till fast pris där din egen projektledare ingår. Nyckelfärdigt hus i ordets rätta bemärkelse!

Mer om totalentreprenad

Uppskattad energiförbrukning

Här kan du få en uppfattning om hur energisnålt ett nytt Myresjöhus faktiskt är. Fyll i din kommun för att se uppskattad energiförbrukning i ditt drömhus just där du vill bygga.

När du väljer en plats du vill bygga på så anpassar vi webbplatsen för att ge dig mer relevant information. Du kan byta plats när som helst.

Energianvändning

(värme & varmvatten)

4 200

kWh/år
Malmö (grundval)

Total energi­användning*

(inklusive hushållsel)

8 400

kWh/år
Energiklass

B

Bo billigare i nybyggt hus

Idag tror många att de inte har råd att bygga ett nytt hus – och allt för många vet heller inte hur mycket billigare det faktiskt är att bo i ett nybyggt hus.

80% lägre energiförbrukning i ett nybyggt Myresjöhus

Att nybyggda hus är energisnåla hus är ingen nyhet, speciellt inte jämfört med äldre villor. Men visste du hur mycket det faktiskt kan skilja?

Spara ännu mer med solceller

Genom att utrusta ditt Myresjöhus med rätt antal solceller kan du nästan bli helt självförsörjande på el. Ett tillval som lönar sig i längden.

Hitta tomt att bygga på

Sök på t.ex. adress, område, stad, kommun, län, projekt-/objektnamn

Liknande hus

Bli OBOS-medlem

Vi på Myresjöhus är en del av OBOS, en av Nordens största bostadsutvecklare. Som OBOS-medlem får du förtur till våra bostäder, tomter och inflyttningsklara hus. Inte nog med förtur, så får du även fina förmåner för vardagsliv och vardagslyx!

Läs mer

Frågor och svar

Hej!

Berätta för oss i vilken kommun du vill bygga. Vi kommer anpassa webbplatsen till din valda kommun för att förenkla för dig.