• Bygghöjd 3,5 m
  • Byggarea 162 m2
  • Antal rum 4 sovrum

Arkitekt

Frida Andersson

Se alla planlösningar

Ett lika vackert som funktionellt 1,5-planshus

Solstrimma gör skäl för sitt namn genom att verkligen släppa in ljuset i huset. Möt ett lika vackert som funktionellt utformat 1,5-planshus, med gott om plats för livet. Fyra sovrum, rum för hemmakontor och utsökta sällskapsytor är bara några av höjdpunkterna.

I Solstrimma förenas två olika huskroppar i en. Den ena delen av huset är skapat som ett 1-planshus och har en öppen planlösning med härlig takhöjd där kök och vardagsrum samspelar i fullkomlig harmoni. Generösa inglasningar låter ljuset flöda, det märks redan i entrén där siktlinjen från entrédörren mot altandörren på baksidan också knyter samman husets framsida med den mer privata trädgårdsdelen.

Solstrimmas andra del är konstruerad som ett 1,5-planshus och rymmer husets privata oaser. På entréplan hittar vi tre sovrum, varav ett med egen klädkammare, toalett med dusch och ett genomgångsrum som passar utmärkt för en arbetsplats. Självklart finns här också en praktisk tvättstuga. En trappa upp väntar sedan ett master bedroom i särklass, där snedtak och takfönster bjuder på ljuvlig loftkänsla. Här uppe finns också ett mindre allrum, husets stora badrum och en generös klädkammare.

Produktbilderna innehåller tillval, se dem som inspirationsmaterial.

Planlösningar

Planlösning 1 av 2

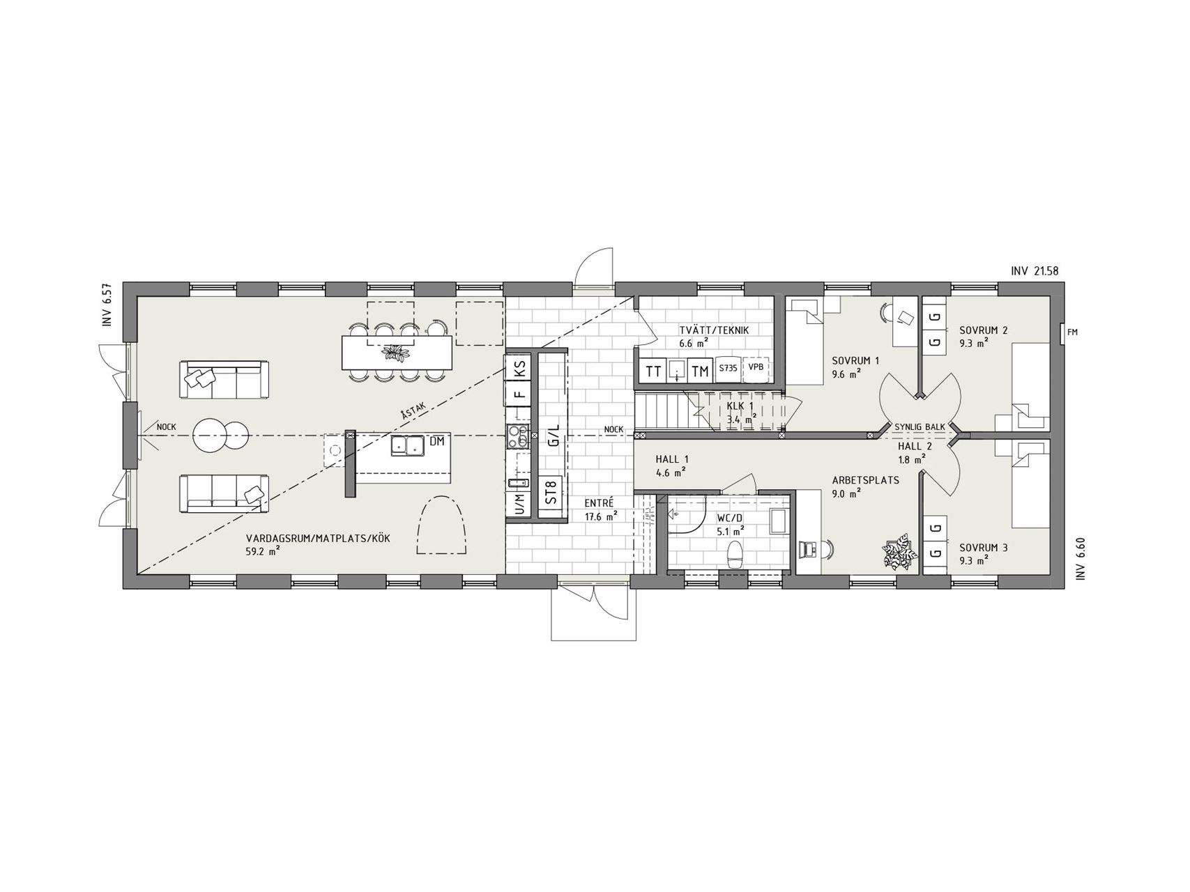
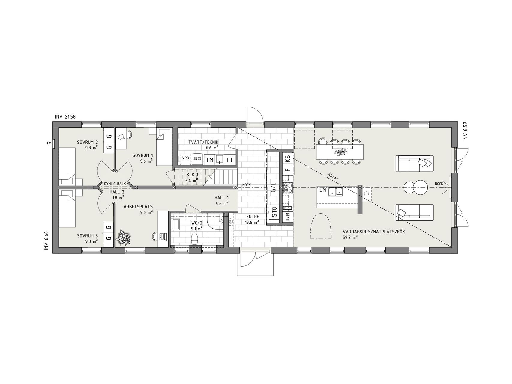
Entrévåning - Lantlig puts

Halva planet är ritat som ett 1-planshus med vardagsrum, kök och matplats i en öppen planlösning – och vackra ljusinsläpp från spröjsade fönster. Den andra halvan rymmer tre sovrum och ett praktiskt arbetsrum.

Planlösning 2 av 2

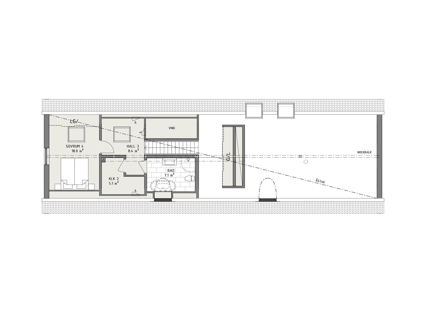
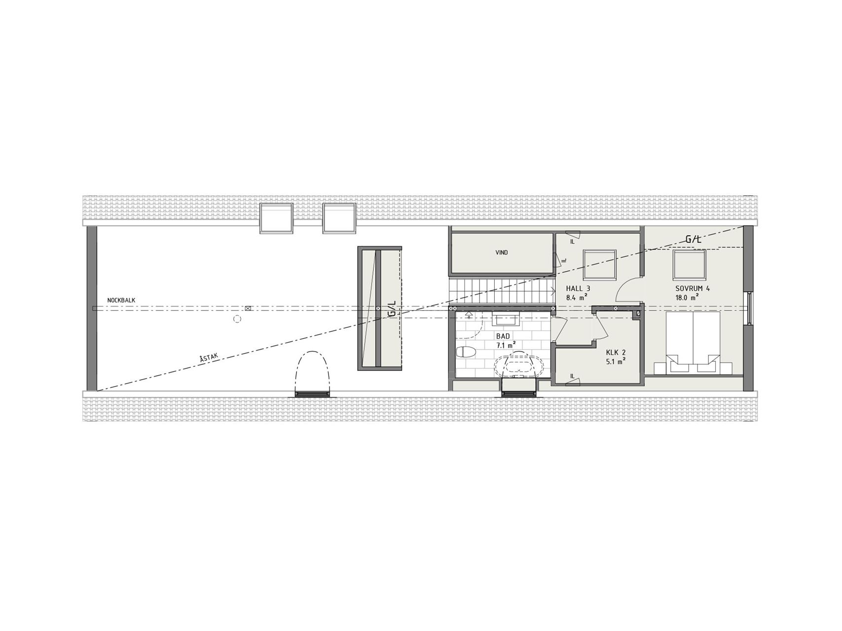
Övervåning - Lantlig puts

En trappa upp finns husets stora sovrum, en generös klädkammare och ett allrum. Kombinationen av snedtaket och husets takfönster skapar en trivsam och loftliknande känsla på övervåningen.

Känns det bara nästan rätt?

Då kan vi hjälpa dig att anpassa planlösningen för att den ska passa er perfekt.

Fler planlösningar

1 av 2

Entrévåning - Lantlig puts

2 av 2

Övervåning - Lantlig puts

Daniel Fredriksson Säljare, Myresjöhus

Nyfiken och vill veta mer?

Vad kostar det?

Hör av dig till oss så återkommer vi med en detaljerad kalkyl baserad på vad och vart du vill bygga.

Bli inspirerad!

Utforska alla våra husmodeller bekvämt hemma i soffan. I brevlådan inom några dagar!

Kontakta oss

Hur vill du att vi kontaktar dig?

Beställ katalog

Maxad inspiration till soffmyset

Solstrimma x Lantlig med puts

Solstrimma i lantlig stil med puts är den lantliga charmen personifierad. Här återskapas en rustik, lantlig stil – som gör traditionen rättvisa. Med putsad fasad, spröjsade fönster, nätt takfot och en symmetriskt fönstersättning. De halvmåneformade takfönstren i entréfasaden knyter an till gavelfasadens fönsterspråk och ger huset sin karaktär, medan den havregula entrédörren förstärker samspelet med naturen. Ett hus som gjort för landsbygden.

Flödet runt köksön och den öppna spisen skapar ett vackert samspel
Frida Andersson, Arkitekt

Dina valmöjligheter

Små detaljer som piffar upp och stora tillval som gör dagarna bättre för hela familjen. Något som gör hemmet lite mer personligt. Lite mer perfekt för just dig. 

Bläddra i katalogen

Ett kontrakt, en kontakt

Ert viktigaste val

En fråga som är lika viktig som vilket hus du ska bygga är hur det ska byggas. På Myresjöhus erbjuder vi totalentreprenad till fast pris där din egen projektledare ingår. Nyckelfärdigt hus i ordets rätta bemärkelse!

Mer om totalentreprenad

Uppskattad energianvändning

Här kan du få en uppfattning om hur energisnålt ett nytt Myresjöhus faktiskt är. Fyll i din kommun för att se uppskattad energianvändning i ditt drömhus just där du vill bygga.

När du väljer en plats du vill bygga på så anpassar vi webbplatsen för att ge dig mer relevant information. Du kan byta plats när som helst.

Energianvändning

(värme & varmvatten)

7 600

kWh/år
Malmö (grundval)

Total energi­användning*

(inklusive hushållsel)

13 800

kWh/år
Energiklass

C

Bo billigare i nybyggt hus

Idag tror många att de inte har råd att bygga ett nytt hus – och allt för många vet heller inte hur mycket billigare det faktiskt är att bo i ett nybyggt hus.

80% lägre energiförbrukning i ett nybyggt Myresjöhus

Att nybyggda hus är energisnåla hus är ingen nyhet, speciellt inte jämfört med äldre villor. Men visste du hur mycket det faktiskt kan skilja?

Spara ännu mer med solceller

Genom att utrusta ditt Myresjöhus med rätt antal solceller kan du nästan bli helt självförsörjande på el. Ett tillval som lönar sig i längden.

Hitta tomt att bygga på

Sök på t.ex. adress, område, stad, kommun, län, projekt-/objektnamn

Liknande hus

Bli OBOS-medlem

Vi på Myresjöhus är en del av OBOS, en av Nordens största bostadsutvecklare. Som OBOS-medlem får du förtur till våra bostäder, tomter och inflyttningsklara hus. Inte nog med förtur, så får du även fina förmåner för vardagsliv och vardagslyx!

Läs mer

Frågor och svar

Hej!

Berätta för oss i vilken kommun du vill bygga. Vi kommer anpassa webbplatsen till din valda kommun för att förenkla för dig.