• Bygghöjd 5,8 m
  • Byggarea 135 m2
  • Antal rum 5 sovrum

Arkitekt

Aleksandra Ohlson

Se alla planlösningar

Ett harmoniskt 2-planshus

Kungsspira är ett vackert tvåplanshus med hela fem sovrum. Här skapar en symmetrisk fasad med en generös fönstersättning ett lika harmoniskt som hemtrevligt uttryck. Fungerar fint även på smalare tomter.

Redan i entrén ser du rakt igenom huset. Ett par steg in möts du av en härligt ljus och luftig gemensam yta för kök, vardagsrum och matplats. 

Förutom praktiska guldkorn som tvättstuga med groventré i anslutning till köket och WC med dusch finns även ett av husets sovrum på entréplan – kanske blir det ditt gästrum, eller varför inte ditt hemmakontor? En trappa upp finns allrum, fyra sovrum och ett generöst badrum. Från allrummet når du även den fina balkongen.

Produktbilderna innehåller tillval, se dem som inspirationsmaterial.

Planlösningar

Planlösning 1 av 2

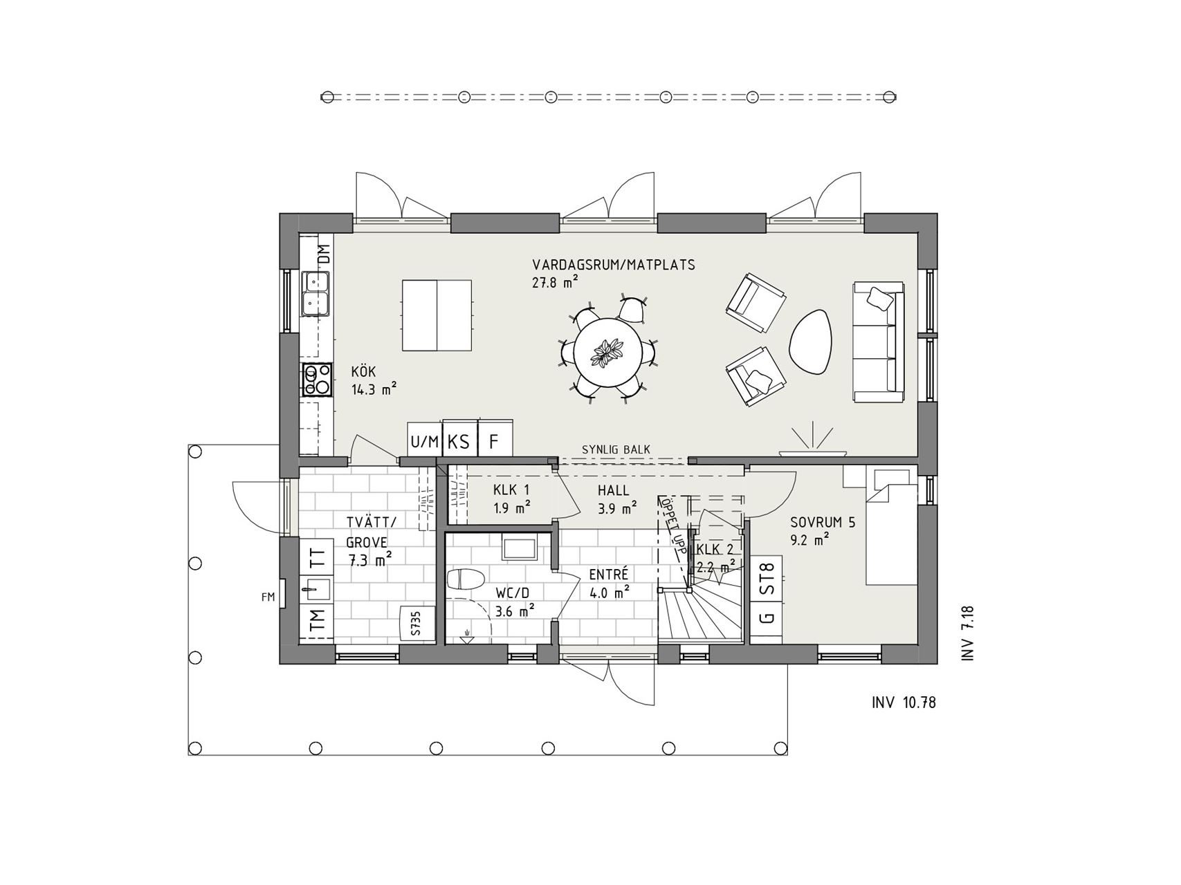
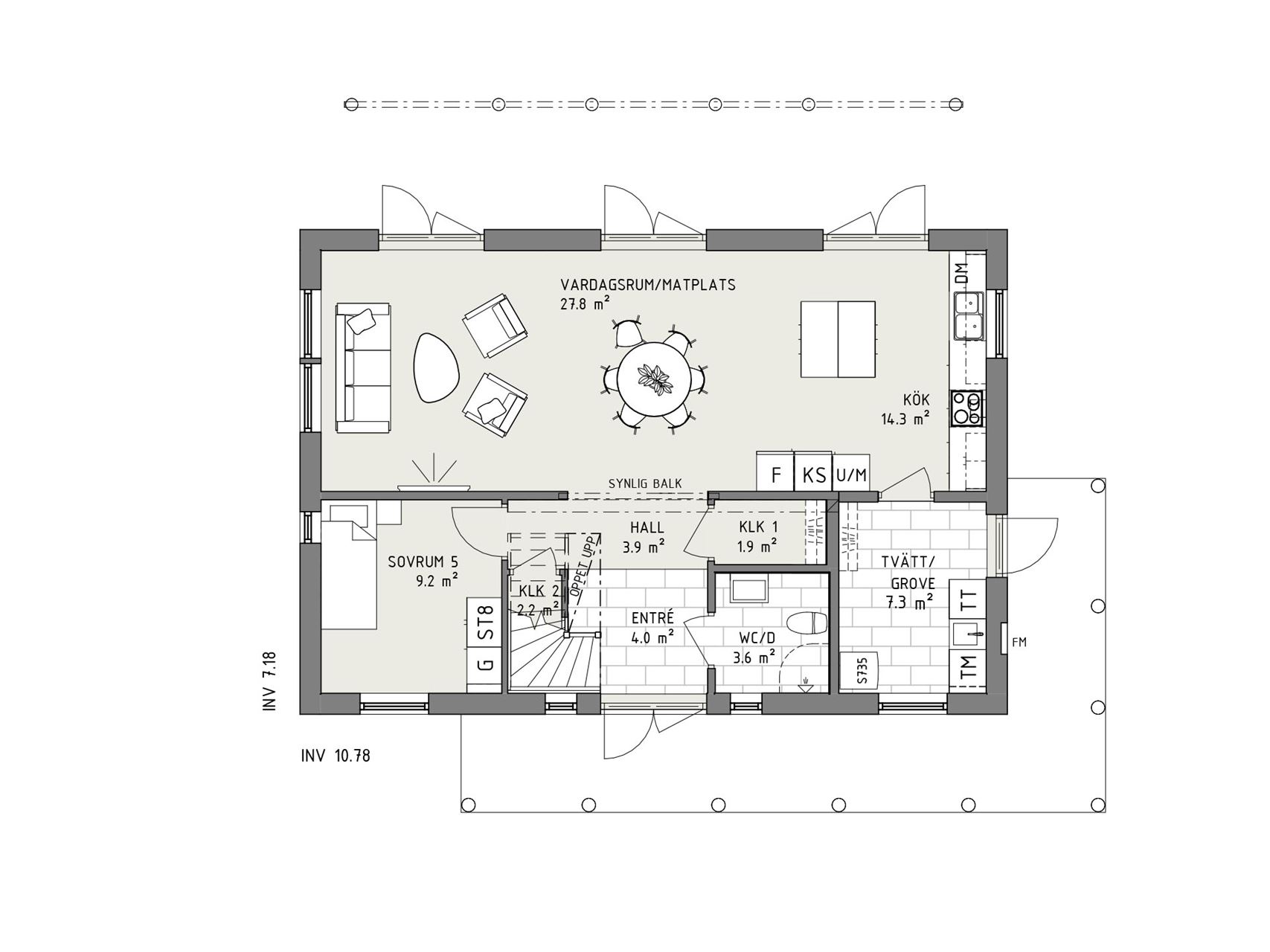
Entrévåning - New England

Redan i entrén ser du rakt igenom huset och möts av en härlig öppen yta för kök och vardagsrum. På entréplan finns tre dubbla altandörrar som ger fin kontakt med trädgården utanför.

Planlösning 2 av 2

Övervåning - New England

På övervåningen möts du först av ett ljust och härligt allrum med utgång till husets härliga balkong. Här uppe finns även fyra fina sovrum, och ett generöst tilltaget badrum.

Känns det bara nästan rätt?

Då kan vi hjälpa dig att anpassa planlösningen för att den ska passa er perfekt.

Fler planlösningar

1 av 2

Entrévåning - New England

2 av 2

Övervåning - New England

Janne Bergendahl Säljare, Myresjöhus

Nyfiken och vill veta mer?

Vad kostar det?

Hör av dig till oss så återkommer vi med en detaljerad kalkyl baserad på vad och vart du vill bygga.

Bli inspirerad!

Utforska alla våra husmodeller bekvämt hemma i soffan. I brevlådan inom några dagar!

Kontakta oss

Hur vill du att vi kontaktar dig?

Beställ katalog

Maxad inspiration till soffmyset

Kungsspira x New England

Kungsspira i New England-stil är en modern tolkning av de klassiska husen från New England. Här har Kungsspira vit, liggande panel och det karaktäristiska svarta taket. Vita, spröjsade fönster och altandörrar, ett vackert balkongräcke och den imponerande entréverandan är ytterligare nycklar till stilen.

Den liggande panelen och de tolvrutiga fönstren förstärker stilen.
Aleksandra Ohlson, Arkitekt

Dina valmöjligheter

Små detaljer som piffar upp och stora tillval som gör dagarna bättre för hela familjen. Något som gör hemmet lite mer personligt. Lite mer perfekt för just dig. 

Bläddra i katalogen

Ett kontrakt, en kontakt

Ert viktigaste val

En fråga som är lika viktig som vilket hus du ska bygga är hur det ska byggas. På Myresjöhus erbjuder vi totalentreprenad till fast pris där din egen projektledare ingår. Nyckelfärdigt hus i ordets rätta bemärkelse!

Mer om totalentreprenad

Hitta tomt att bygga på

Sök på t.ex. adress, område, stad, kommun, län, projekt-/objektnamn

Liknande hus

Bli OBOS-medlem

Vi på Myresjöhus är en del av OBOS, en av Nordens största bostadsutvecklare. Som OBOS-medlem får du förtur till våra bostäder, tomter och inflyttningsklara hus. Inte nog med förtur, så får du även fina förmåner för vardagsliv och vardagslyx!

Läs mer

Frågor och svar

Hej!

Berätta för oss i vilken kommun du vill bygga. Vi kommer anpassa webbplatsen till din valda kommun för att förenkla för dig.