• Bygghöjd 3,2 m
  • Byggarea 179 m2
  • Taklutning 38°
  • Antal rum 6 rum och kök

Arkitekt

Frida Andersson

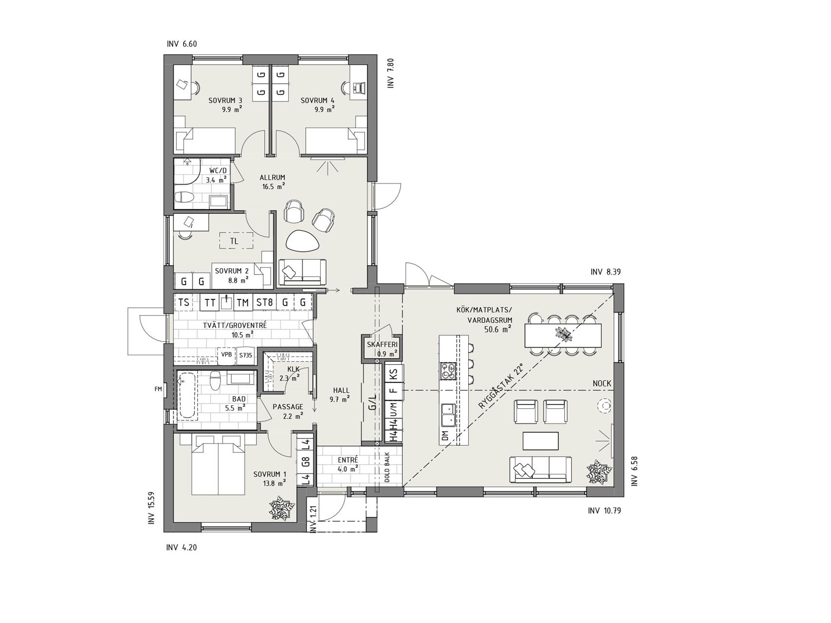
Se planlösning

Ytterst tilltalande 1-planshus i vinkel

Rimfrost är ett lika vackert som välfungerande enplanshus med rum för det mesta en vill ha ut av huslivet. Öppen planlösning för kök och vardagsrum, fin barnavdelning med tre sovrum – och ett master bedroom med hotellkänsla. Det är bara några av höjdpunkterna.

Rimfrost bjuder på en väl genomtänkt planlösning, ett härligt ljusinsläpp från stora fönsterytor och gott om detaljer som ger ett hem det lilla extra. Direkt i entrén kan vi antingen välja att svänga rakt in i den fina öppna planlösningen för kök och vardagsrum, eller fortsätta in i husets mer privata sfär. Där välkomnas vi först av gott om förvaring, ett fint badrum – och granne med det: husets luftiga master bedroom, som tack vare sitt privata läge med närhet till badrummet får fin hotellkänsla.

Näst på tur är en generös tvättstuga med groventré, och sedan kommer det som kanske blir barnens egen domän. Tre sovrum och en toalett med dusch grupperade runt ett mysigt allrum som även har utgång till trädgård och uteplats. Men kanske har vi ändå sparat det bästa till sist? Rimfrosts sociala nav som badar i ljus från tre väderstreck. Förutom gott om plats för att umgås på finns här ett supersnyggt studiokök – och ett riktigt skafferi.

Produktbilderna innehåller tillval, se dem som inspirationsmaterial.

Planlösning

Industriell stil

Till vänster väntar härliga sociala ytor, där stora fönster med karaktäristiska spröjs släpper in ljuset och ger fin kontakt med trädgården. På andra sidan av huset sträcker hemmets privata ytor ut sig i all sin glans.

Känns det bara nästan rätt?

Då kan vi hjälpa dig att anpassa planlösningen för att den ska passa er perfekt.

Andreas Ejresund Säljare, Myresjöhus

Nyfiken och vill veta mer?

Vad kostar det?

Hör av dig till oss så återkommer vi med en detaljerad kalkyl baserad på vad och vart du vill bygga.

Bli inspirerad!

Utforska alla våra husmodeller bekvämt hemma i soffan. I brevlådan inom några dagar!

Kontakta oss

Hur vill du att vi kontaktar dig?

Beställ katalog

Maxad inspiration till soffmyset

Rimfrost x Industriell

I sin industriella stil får Rimfrost en vacker, värmebehandlad panel kombinerat med svarta industrispröjsade fönster och detaljer som skapar stilens karaktäristiska kontraster. Den generösa fönstersättningen med höga fönster ger ett effektfullt uttryck, samtidigt som de ger fin kontakt med trädgård och uteplats.

Studioköket med riktigt skafferi är en av husets höjdpunkter.
Frida Andersson, Arkitekt
Man på träningspass

Dina valmöjligheter

Små detaljer som piffar upp och stora tillval som gör dagarna bättre för hela familjen. Något som gör hemmet lite mer personligt. Lite mer perfekt för just dig. 

Bläddra i katalogen

Ett kontrakt, en kontakt

Ert viktigaste val

En fråga som är lika viktig som vilket hus du ska bygga är hur det ska byggas. På Myresjöhus erbjuder vi totalentreprenad till fast pris där din egen projektledare ingår. Nyckelfärdigt hus i ordets rätta bemärkelse!

Mer om totalentreprenad

Hitta tomt att bygga på

Sök på t.ex. adress, område, stad, kommun, län, projekt-/objektnamn

Liknande hus

Bli OBOS-medlem

Vi på Myresjöhus är en del av OBOS, en av Nordens största bostadsutvecklare. Som OBOS-medlem får du förtur till våra bostäder, tomter och inflyttningsklara hus. Inte nog med förtur, så får du även fina förmåner för vardagsliv och vardagslyx!

Läs mer

Frågor och svar

Hej!

Berätta för oss i vilken kommun du vill bygga. Vi kommer anpassa webbplatsen till din valda kommun för att förenkla för dig.