• Bygghöjd 5,04 m
  • Byggarea 126 m2
  • Antal rum 4 sovrum

Arkitekt

Peter Stenberg

Se alla planlösningar

Solbacken

Sluttningshus med sadeltak, 157,7 m² (BIA 6,7 m²)

Solbacken passar utmärkt för den medelstora familjen. Från sluttningsvåningens entré ser du direkt upp mot trädgården genom den stora trappöppningen med tillhörande fönster. Barnens avdelning finns i villans nedre del med groventré, tvätt och allrum. Övervåningen domineras av en ljus och öppen yta för kök, vardagsrum, matplats och balkong. Här finns även föräldrarnas sovrum med en större klädkammare för smart förvaring.

Detta hus är ett idéhus och visas endast på webben. Kontakta våra lokala kontor för en offert.

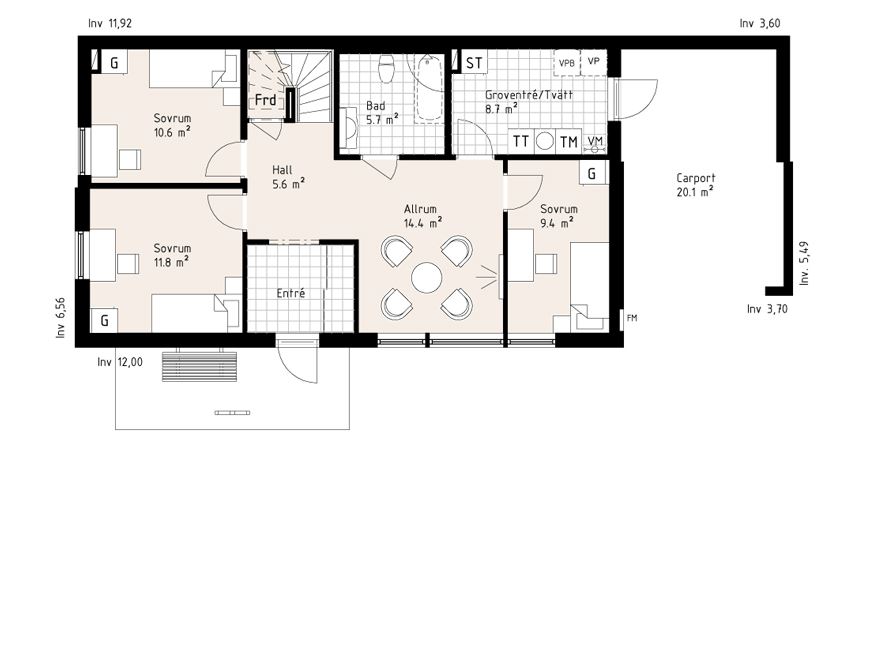
Planlösningar

Planlösning 1 av 2

Förslag på planlösning - Entrévåning

Detta hus är ett idéhus och visas endast på webben. Kontakta våra lokala kontor för en offert.

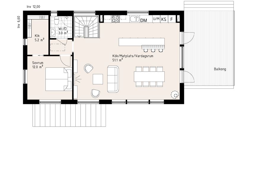
Planlösning 2 av 2

Förslag på planlösning - Övervåning

Detta hus är ett idéhus och visas endast på webben. Kontakta våra lokala kontor för en offert.

Fler planlösningar

1 av 2

Förslag på planlösning - Entrévåning

2 av 2

Förslag på planlösning - Övervåning

Våra sluttningshus

Kontakta oss

Vi ser fram emot att höra från dig!

Hur vill du att vi kontaktar dig?

Hej!

Berätta för oss i vilken kommun du vill bygga. Vi kommer anpassa webbplatsen till din valda kommun för att förenkla för dig.